top of page
FEKJAN, ASKER

Firm: Arcasa Phase: design development Year: 2022/23
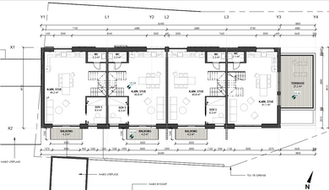
Rehabilitation of an existing technical building. New function for the main structure was housing. Four units streching across three floors each were designed.
I was the architect in charge during this project, responsible for design, contact with the client and consultants. The project had no renderings yet as it was still in a development phase.
bottom of page




